展示什器02

Storage Fixtures 03

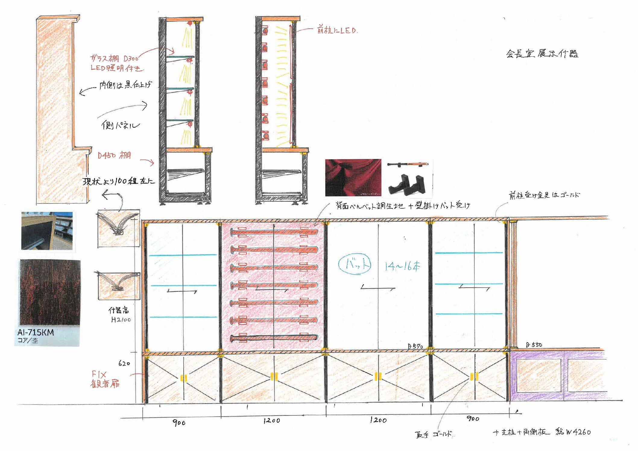
システム什器をベースに木工材等で側面・天板及びガラス扉を取り付け化粧することで、意匠性を向上。また、展示品の
・視認性を考慮したディスプレイ設定
・棚下、前柱照明による逸品性の向上
・素材、色合いによる高級感の向上
を考慮した設計になっているため展示品だけでなく空間全体に対しても華やかさを向上させる家具になります。システム什器と木工の組合せでバラバラの状態で納品して組立する事ができるので、エレベーターに載らないサイズでも納品が可能です。

展示什器02

Storage Fixtures 03

システム什器をベースに木工材等で側面・天板及びガラス扉を取り付け化粧することで、意匠性を向上。また、展示品の
・視認性を考慮したディスプレイ設定
・棚下、前柱照明による逸品性の向上
・素材、色合いによる高級感の向上
を考慮した設計になっているため展示品だけでなく空間全体に対しても華やかさを向上させる家具になります。システム什器と木工の組合せでバラバラの状態で納品して組立する事ができるので、エレベーターに載らないサイズでも納品が可能です。

F.クリエイトでは、自社開発で多機能で多用途な収納什器を考案・自社導入しており、他社と差別化をした施工が可能です。
展示什器は、組み立て方によって様々な用途に対応可能で、展示効果の向上や接客・商談の効率化向上に繋がります。さらに使い勝手にも優れており、様々な形状の商品の展示が楽になります。商品展示や接客効率向上をサポートする最適な展示什器なので興味があればお問合せ下さい。

製品詳細資料

幅900mm×2+1200mm×2
高さ2100mm

展示状態

前柱・棚下、照明付き

前柱・棚下、照明付き
ガラス棚、展示状態

前柱・棚下、照明付き
バー+バット受け、展示状態

ラフイメージ・3Dパース・設計図

ラフスケッチ

3Dパース

W900-2+W1200-2×H2100
4連結/組み立て状態

爆発図
部品説明

製品価格

展示什器
製品・外寸法
壁面:W900-2+W1200-2×H2100_4連結
部材構成 付属オプション:
側板_W630×D2100-左右1セット
天板・LED照明付き_W900×D400-2セット
天板・LED照明付き_W1200×D400-2セット
ストック台_W900×D550×H620-2セット
ストック台_W1200×D550×H620-2セット
前柱・LED照明付き-5セット(金具含む)
ガラス扉・観音開き_W900-2セット
ガラス扉・観音開き_W1200-2セット
フックバーセット_W1200-12セット
バット受け-12セット ネームホルダー-12セット
ガラス棚セット_W900×D300-6セット
棚下照明_W900-6セット
スチール棚_W900×D450-2セット
スチール棚_W1200×D450-2セット
販売価格 ¥(税込・送料組立別途)

その他オプション価格
■ ガラス棚セット W1200 × D300 販売価格 ¥(税込・送料組立別途)
■ フックバーセット W900 販売価格 ¥(税込・送料組立別途)

お問い合わせはこちら

製品に関するお問い合わせをメールにてお受けしております。
お送りいただいた内容を確認のうえ、担当者よりご返答させていただきます。
数日経っても返答が無い場合、サーバートラブル等でメールが送信されていないことも考えられます。ご遠慮なくお問い合わせ下さい。
お急ぎの方は、お電話にて直接お問い合わせ下さい。

  メールでのお問い合わせ
  お電話でのお問い合わせ